Gå til: Plantegninger | Fasade | Kontaktskjema
201 – SKOGLI
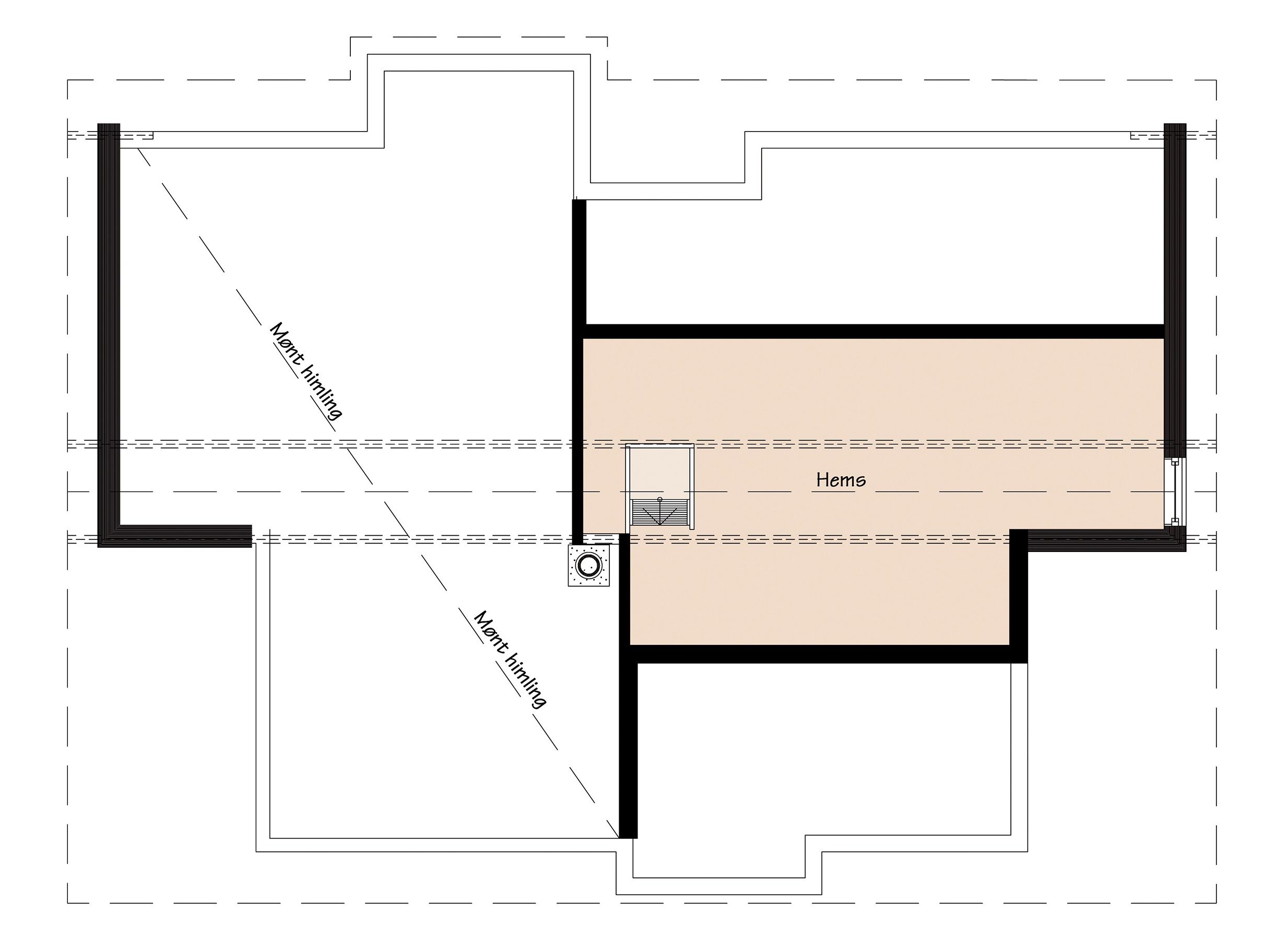
Mønt himling og store vindusflater gir lys og romfølelse på kjøkken og stue. 3 soverom og hems gjør dette til en funksjonell familiehytte. Hytten har 2 overbygde og skjermede uteplasser.
Begregnet for flat tomt.
Med forbehold om at det kan være nødvendig med justeringer, det er en eldre hytte som vi ikke kan garantere oppfyller dagens tekniske krav.
TEKNISK DATA
PLANTEGNINGER
ØNSKER DU MER INFORMASJON?
FYLL UT SKJEMAET, SÅ KONTAKTER VI DEG FOR EN HYGGELIG BOLIGPRAT
ARKITEKT
ALT KAN TILPASSES FOR Å IMØTEKOMME DERES ØNSKER OG BEHOV
Fordelene med å bygge et helt nytt hus, er at du kan få det akkurat slik som du vil. Trolig finner du en husmodell i vår katalog som kan passe, men kanskje ønsker du å tilpasse boligen etter egne ønsker og behov.
Vi vil gjøre vårt ytterste for at du skal bli fornøyd, og hjelper deg hele veien fra idé til ferdig bolig. Vi har fagkunnskap og gir gode råd for at du skal få bygget en bolig som passer deg helt perfekt.»







